VERLAGERUNG VON FERTIGUNGSPROZESSEN
Wir haben uns spezialisiert auf Serienauslaufprodukte unserer Kunden einschließlich Übernahme der Fertigungsanlagen, um freie Flächen für neue Projekte zu generieren.
Der gewonnene Erfahrungsschatz ermöglicht einen schnellen und organisierten Projektablauf.
Der Vorlauf für den Verlagerungszeitraum wird mit dem eigenen Maschinenpark dargestellt.
Nach Serienauslauf garantieren wir die Ersatzteilbelieferung.
VERLAGERUNGSPROJEKTE
2011 Sonnenräder NAG 1-2
Verlagerungsfläche: ca.1800 m²
Gesamtmaschinenanzahl: 15
Anzahl der verlagerten Maschinen: 9
Auftragsvergabe bis Fertigungsstart: 6 Monate
2013 Antriebswellen und Mitnehmerflansche
Verlagerungsfläche: ca.1200 m²
Gesamtmaschinenanzahl: 16
Anzahl der verlagerten Maschinen: 8
Auftragsvergabe bis Fertigungsstart: 6 Monate
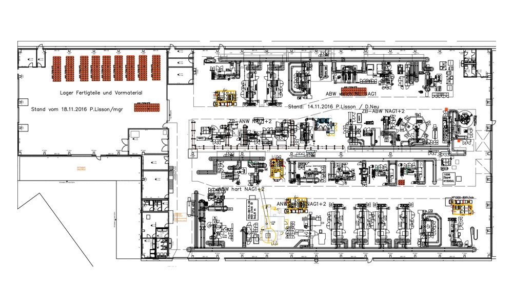
NAG 1+2 Antriebswellen – Abtriebswellen
Ablaufbeschreibung:
2015 Produktionsvorlauf für die Maschinenverlagerung auf eigenem Maschinenpark.
10-2015 Baubeginn der neuen Halle
04-2016 Bezug der neuen Hallen und Aufbaubeginn der übernommenen Maschinen.
07-2016 Serienstart Linie1 – Weichbearbeitung Antriebswelle
08-2016 Serienstart Linie2 – Hartbearbeitung Antriebswelle
02-2017 Serienstart Linie3 – Laserschweißen und Montage Antriebswelle
10-2016 Demontage der Abtriebswellenmaschinen beim Kunden
05-2017 Serienstart Linie4 – Weichbearbeitung Abtriebswelle
06-2017 Serienstart Linie5 – Hartbearbeitung Abtriebswelle
07-2017 Serienstart Linie6 – Laserschweißen und Montage Abtriebswelle
Verlagerungsfläche: Neubau einer Fertigungshalle mit 5400 m² + 1400m² in vorhanden Hallen
Gesamtmaschinenanzahl: 66
Anzahl der verlagerten Maschinen: 46
Auftragsvergabe bis Fertigungsstart: ca. 18 Monate
Hallenplan Neubau













